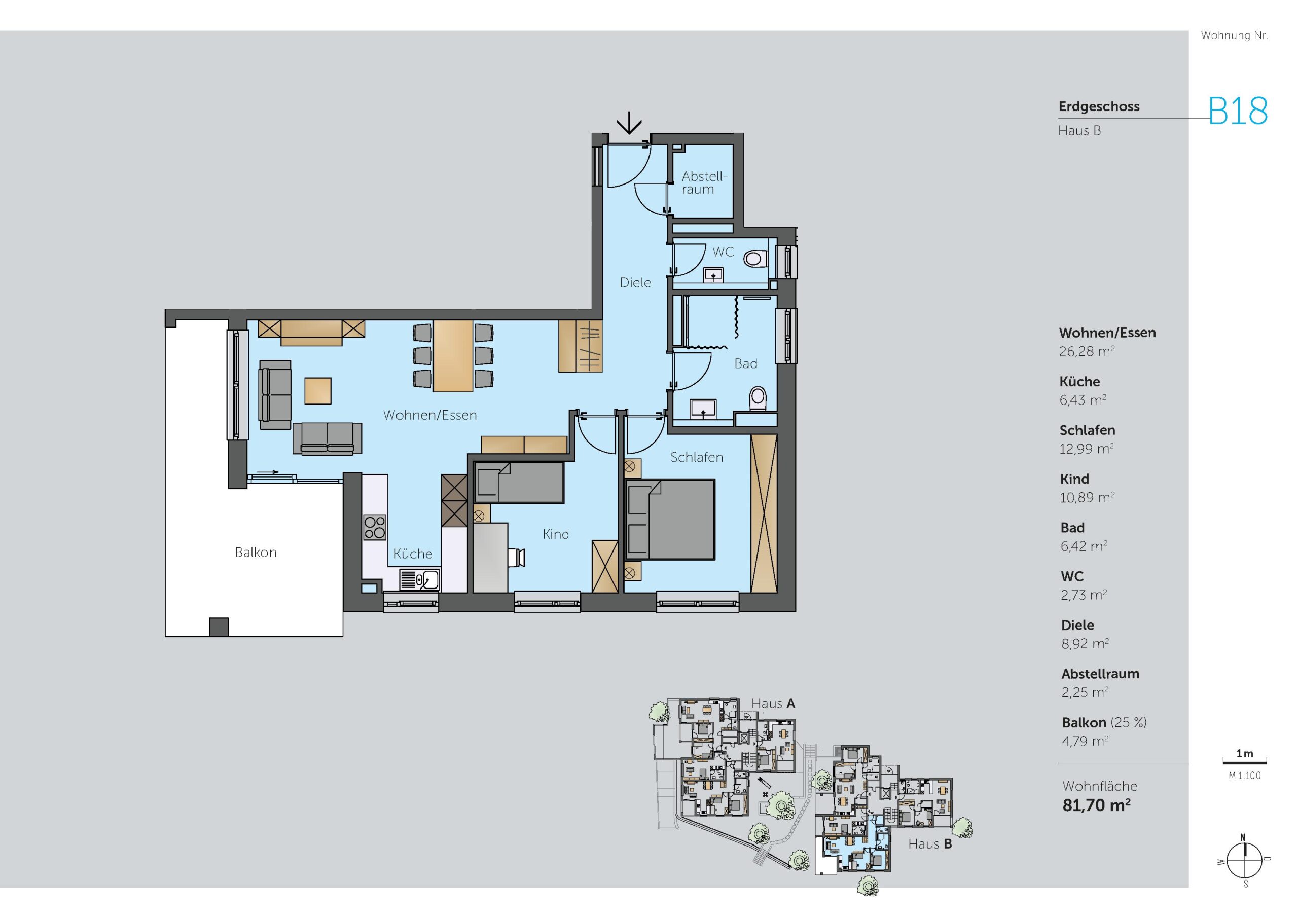
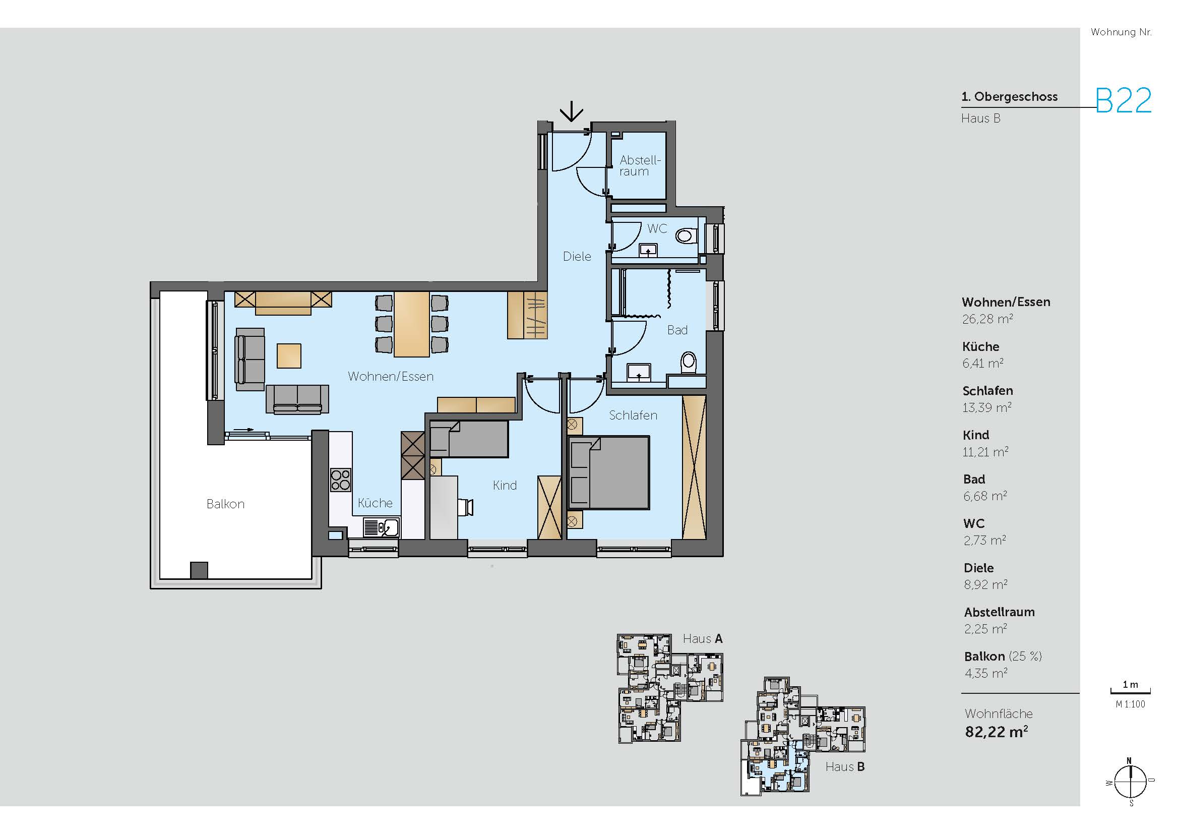
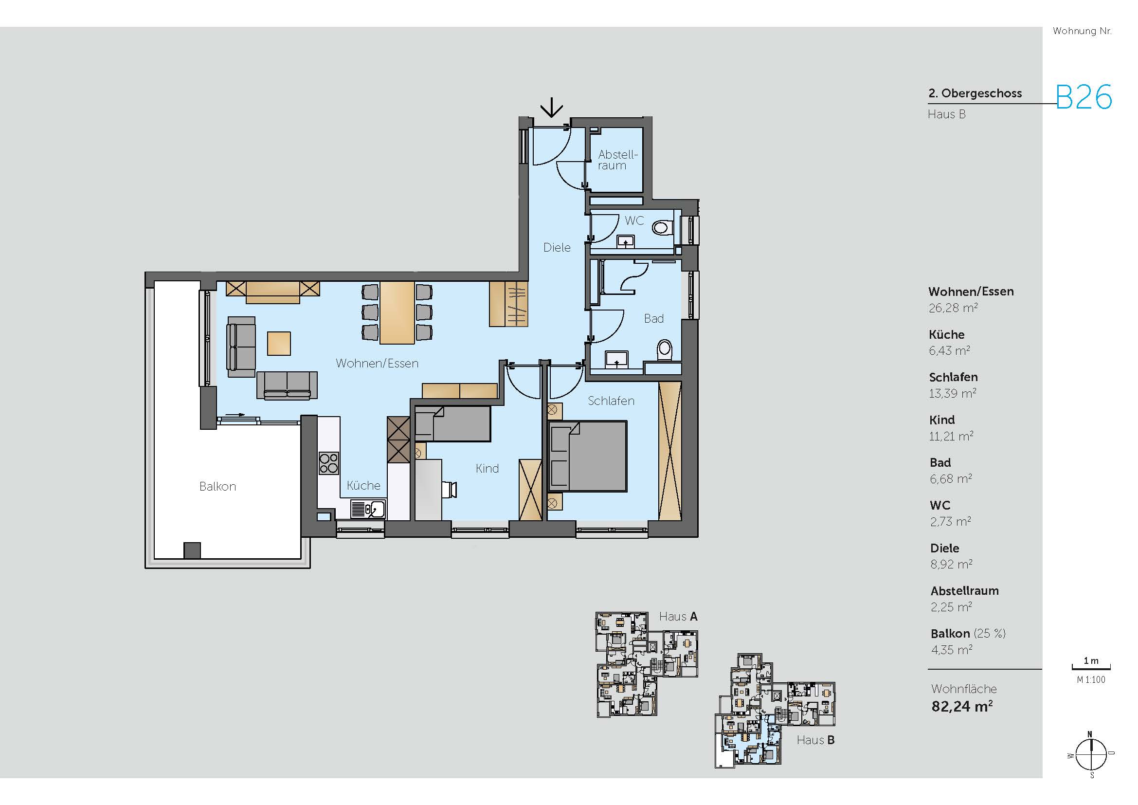
3-Zimmer Wohnung mit Balkon (Haus B)
Wohnung B18, B22, B26
So liegen die beiden Mehrfamilienhäuser im wahrsten Sinne des Wortes im Herzen Wasseralfingens. Alle Einrichtungen, Einkaufsmöglichkeiten und Arztpraxen befinden sich in fußläufiger Entfernung, die Schule ist nur eine Straße entfernt und über eine neu angelegte Brücke sicher zu erreichen. Kurze Wege sind die Regel – im Alltag einfach, praktisch und zeitsparend.
Zudem ist die Wohnanlage landschaftlich schön eingebettet: Die hügelige Landschaft und zahlreiche Naturräume laden dazu ein, die beeindruckende Umgebung durch zahlreiche Rad- und Wanderwege zu entdecken. Gerne genutzt wird auch die Anbindung an Aalen durch den Öffentlichen Personennahverkehr (ÖPNV).
Die großzügig gestalteten Mehrfamilienhäuser bieten eine optimale Raumnutzung durch gut durchdachte Grundrisse, die ein komfortables und funktionales Wohnen ermöglichen. Helle, offene Räume schaffen eine einladende Atmosphäre und betonen das angenehme Wohnambiente. Bei der Innenausstattung wurde besonderer Wert auf die Verwendung moderner und langlebiger Materialien gelegt, die sowohl zeitgemäß als auch wertbeständig sind.
Dieses Neubau-Projekt setzt mit seiner nachhaltigen Konzeption und dem Fokus auf zukunftsweisende Energieeffizienz neue Maßstäbe. Die Einhaltung des hohen KfW-40-Standards wird durch eine sorgfältig ausgewählte Außenwandkonstruktion und den Einsatz modernster Heizungstechnik gewährleistet. Zusätzlich unterstützen die dreifach-verglasten Fenster die Wärmeisolierung und den Schallschutz, wodurch ein angenehmes Wohnklima geschaffen wird.
Ein intelligentes Raumkonzept ermöglicht die unkomplizierte Integration von Komponenten des Smart-Home-Systems der renommierten Firma Busch-Jäger als individuellen Sonderwunsch. Ein barrierefreier Zugang zu allen Wohnungen wird durch den vorhandenen Aufzug gewährleistet, um den Bewohnern maximalen Komfort und Zugänglichkeit zu bieten.
Jede Wohneinheit verfügt über einen eigenen Parkplatz, während fest eingeplante Fahrradstellplätze den Bedürfnissen moderner Mobilität gerecht werden. Ein hochwertiger Parkettboden in den Wohnräumen schafft ein gemütliches Ambiente, während der Filzputz an den Wänden ein Gefühl von Wärme und Behaglichkeit vermittelt. Dieses Projekt vereint somit zeitgemäßes Wohnen mit nachhaltigem Design und schafft einen Ort, an dem Komfort, Funktionalität und Umweltbewusstsein im Einklang miteinander stehen.
- Wohnfläche: ca. 81,70 m² – 82,22 m²
- Zimmer: 3
- Lage: EG, 1. OG, 2. OG
- Baujahr: 2023/24
- Beheizungsart: Fernwärme
- Energiebedarfsausweis: in Vorbereitung
- Moderne Bäder
- Fußbodenheizung
- Parkett
- Keller
- Aufzug
- Parkplatz (Tiefgaragenstellplatz oder Außenstellplatz)
- Fahrradstellplätze



